S
T
U
D
I
E
S
/
S
N
D
/
ROW HOUSE NO.1
ROW HOUSE + COURTYARD
20251125
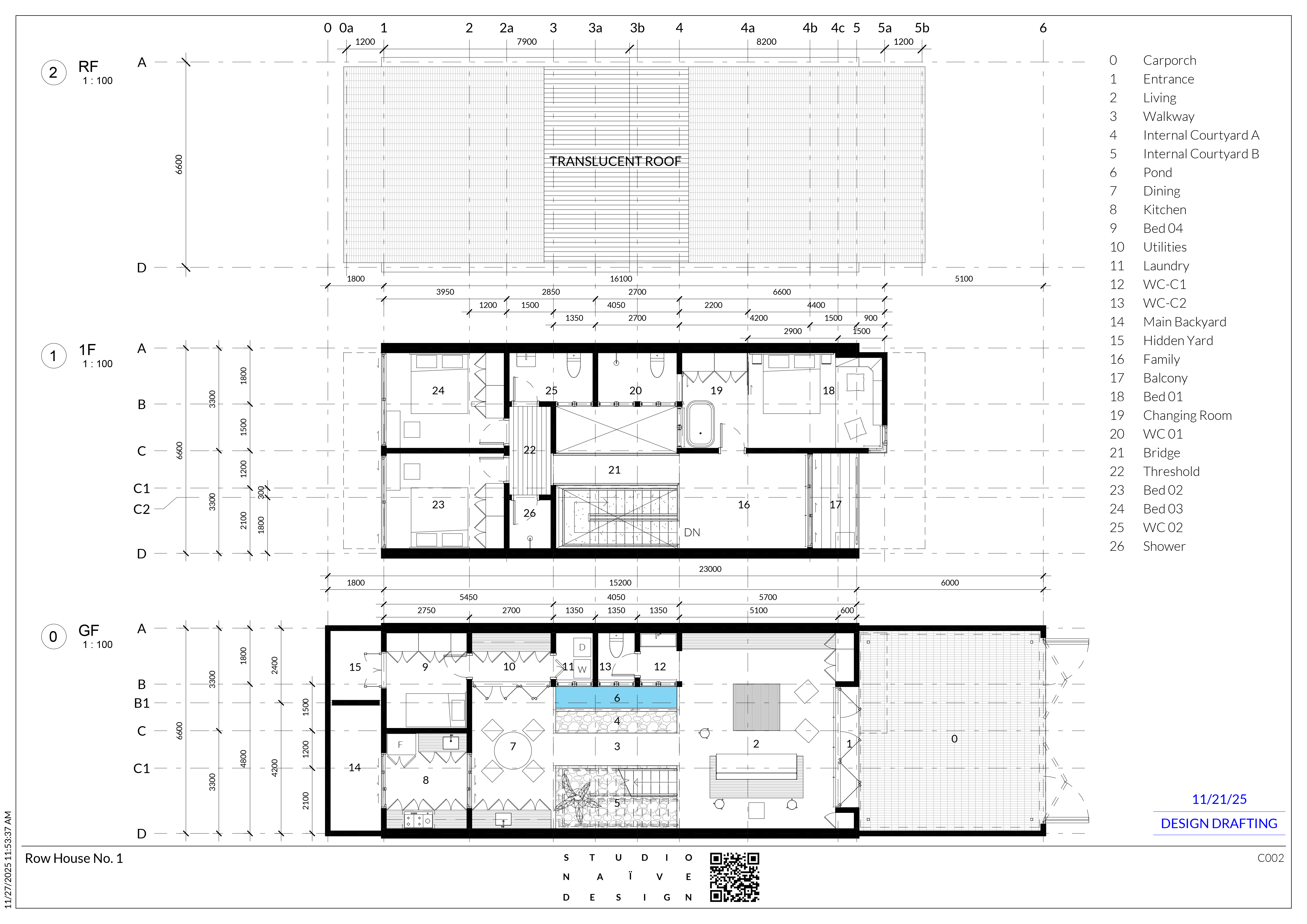
Row houses are a common residential type in Malaysia. The typical 22x70 double-storey configurations with a 4-bedroom layout struggles to receive sufficient natural sunlight, as the central portion of the ground floor tends to be particularly dark. Toilets often occupy portions of the front or rear façade, which limits the placement and quality of other living spaces.
An indoor courtyard can address these issues by creating a usable internal space that brings skylight to the ground floor. It also serves as a buffer between different programs and improves overall spatial quality of the house.
An indoor courtyard can address these issues by creating a usable internal space that brings skylight to the ground floor. It also serves as a buffer between different programs and improves overall spatial quality of the house.



STUDIO NAÏVE DESIGN 2024